
12月4日,青岛自然资源和规划局发布了中巍白云山二期项目规划方案批前公示,项目位于城阳街道春阳路95号,项目业态包括住宅、商业、幼儿园。

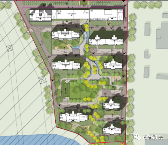
根据公示的规划方案,中巍二期地块规划建设19栋小高层、中高层住宅(5栋10F、3栋8+2F、3栋18F、2栋16+2F、1栋17F、1栋15+2F、1栋8F、1栋6+2F、1栋7+2F和1栋17+1F的人才公寓)。项目用地面积68310平米,总建筑面积201168平米。

项目业态包括住宅、商业、幼儿园,通过合理的建筑空间组合与布局设计,将项目用地内各业态有机组合,形成舒适与怡然的城市空间感受。项目通过南北向中轴景观连接,在中心打造一个大尺度的凸字形中心景观花园,将项目打造成生态、宜居、自然的居住空间。


另外,该地块南侧的一期地块已于今年10月发布规划方案规划公示公告。一期地块占地面积24293㎡,容积率2.4,规划建筑面积76590.5㎡,其中地上建面58303.2㎡,包含住宅50532.89㎡+商务办公4358.19㎡+商业2905.46㎡+配套506.65㎡。
根据规划公示,中巍一期项目由8栋13-18层住宅(7栋18F、1栋13+2F)、一栋5+2F的商务办公及商业组成。


至此,中巍在白云山板块完成了出场亮相。
2022年9月15日,青岛市第三批次集中供地开启,市南市北李沧城阳四区共推出19宗地,其中,中巍分别以4567元/㎡和4724元/㎡的楼面地价成功摘得城阳白云山两宗地,总价约8.9亿元。
这是继31.47亿摘下李沧区坊子街改造项目南北2宗地、6.8亿二级市场获得崂山区香港东路490号地块后,中巍在青岛地产版图的又一次布局。此次白云山地块参与竞拍的主体为中巍环湾(青岛)投资开发有限公司,其股东分别位中巍集团以及青岛城阳开发投资集团有限公司。

近年来,中巍在土地市场表现异军突起,其中,中巍(青岛)房地产开发有限公司曾于2020年3月18日和3月27日分批次拿下坊子街改造项目南北2宗地,总占地面积17.56万㎡,规划总建面38.13万㎡,商住比为4:6,成交总价31.47亿,也就是目前在建的双子星城公园里。在今年年初公司股权发生变更后,李沧区政府旗下青岛融海国有资本投资运营有限公司介入并持股20%左右。
目前,北区12栋住宅已售罄,目前项目南区(双子星城公园里)在售,为洋房及小高层,因毗邻地铁1号线南岭站及主城低密度、万科物业等优势,而备受购房者关注。
此外,中巍集团(青岛)有限公司在二级市场,曾于2020年12月30日以6.8亿元,通过债权转让方式获得崂山区石老人11万㎡商业地块。


近年来,依托于得天独厚的自然资源,以及青特、和达等本土实力派房企的深耕力作,加之全国房地产巨头的纷纷落子、布局,互为烘托,共同推动了片区的大发展,目前来看,整个白云山板块已经城阳最高端的人居板块之一,社会财富正日渐向白云山聚集,城阳乃至青岛有经济实力的家庭也逐渐认同片区价值。譬如,青特滨湖国际项目在2021年冬季的热销,也彰显了高品质圈层对白云山板块的青睐。
如今,随着中巍的加入,并且在今年青岛第四批次集中供地中,白云山片区又将出让四宗地块,将吸引更多的逐梦人加入这片冉冉升起的“未来之城”,也因此,白云山板块将形成更加百花齐放的新局面,购房者也将迎来更加多样化的新选择。(文/青岛日报记者 李鹏飞)
责任编辑:金泽钰